Skip To Content

115 E 39th Street

New York (Manhattan), NY 10016
  • $4,999,950
  • STATUS: Active
  • MLS #: H6325406
UPDATED: 52 min ago
$4,999,950
  • 0
    BEDS
  • 0.04
    ACRES
  • 0
    BATHS
  • 0
    1/2 BATHS
Neighborhood:
Type:
Commercial
Built:
1910
County:
Area:

School Ratings & Info

Description

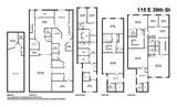
Unlock the potential of this strategically located multi-family property in the heart of Midtown Manhattan. Just two blocks from iconic Grand Central Terminal, this building offers endless possibilities. Original building square footage: 6,254 + PH apartment 1st-floor office and medical space 2nd floor Medical office space 3rd floor. x1 studio and x1 one-bedroom currently occupied RS 4th floor x1 large apartment space 5th floor x1 studio and x1 one bedroom apartment. There is flexibility for a triple net lease, the owner renting the bottom two floors and the buyer taking over the upper apartments, or they can be delivered empty (with the exception of two rent stabilized tenants) to an owner with the vision to take advantage of the exciting possibilities. Great opportunity to occupy or simply modify for your needs or just rebuild into your own unique vision.

Monthly Payment Calculator



© 2026 OneKey MLS. All rights reserved. IDX information is provided exclusively for consumers' personal, non-commercial use and may not be used for any purpose other than to identify prospective properties consumers may be interested in purchasing. Information is deemed reliable but is not guaranteed accurate by the MLS or This Old Hudson Team at Houlihan Lawrence. Data last updated: 2026-04-12T21:17:17.63.
www.thisoldhudsonrealestate.com/homes/154348381
Print Image

115 E 39th Street New York (Manhattan), NY 10016

  • Price: $4,999,950
  • Status: Active
  • On Site: Days
  • Updated: 52 min ago
  • MLS #: H6325406
0
Beds
0
Baths
0
½ Baths
0.04
Acres
1910
Built
Neighborhood:
New York
County:
Manhattan
Area:
New York
Property Description
Unlock the potential of this strategically located multi-family property in the heart of Midtown Manhattan. Just two blocks from iconic Grand Central Terminal, this building offers endless possibilities. Original building square footage: 6,254 + PH apartment 1st-floor office and medical space 2nd floor Medical office space 3rd floor. x1 studio and x1 one-bedroom currently occupied RS 4th floor x1 large apartment space 5th floor x1 studio and x1 one bedroom apartment. There is flexibility for a triple net lease, the owner renting the bottom two floors and the buyer taking over the upper apartments, or they can be delivered empty (with the exception of two rent stabilized tenants) to an owner with the vision to take advantage of the exciting possibilities. Great opportunity to occupy or simply modify for your needs or just rebuild into your own unique vision.
Exterior Features

Parking Features On StreetOpen Stories Total 5 Waterfront YN No

Interior Features

Appliances Tankless Water Heater Basement Details Full Basement YN Yes Cooling Wall/Window Unit(s) Flooring Combination

Property Features

Additional Fees YN No Association YN No Building Area Total 6264 Building Features Walk Up Heating Forced AirNatural Gas Property Sub Type Multi Family Sewer Public Sewer Sprinkler System YN No Street View Param 1$40.750022$-73.977996$224.21$13.33$1.00$CAoSLEFGMVFpcE13Y1l0WVBkQVp4aXd6My1ZYTdpVk9hOHE5d2dwcGU3TjBPbmFm Usable Area 6264.00 Utilities Electricity AvailableTrash Collection PublicWater Available Water Source Public Zoning R8B

Listing courtesy of Chintan Trivedi of RE/MAX In The City: 929-222-4200
© 2026 OneKey MLS. All rights reserved.


© 2026 OneKey MLS. All rights reserved. IDX information is provided exclusively for consumers' personal, non-commercial use and may not be used for any purpose other than to identify prospective properties consumers may be interested in purchasing. Information is deemed reliable but is not guaranteed accurate by the MLS or This Old Hudson Team at Houlihan Lawrence. Data last updated: 2026-04-12T21:17:17.63.
 
https://bt-photos.global.ssl.fastly.net/wpmls/orig_boomver_1_H6325406-1.jpg https://bt-photos.global.ssl.fastly.net/wpmls/orig_boomver_1_H6325406-1.jpg https://bt-photos.global.ssl.fastly.net/wpmls/orig_boomver_1_H6325406-1.jpg
Logo
This Old Hudson Team at Houlihan Lawrence
Hudson NY, 12534